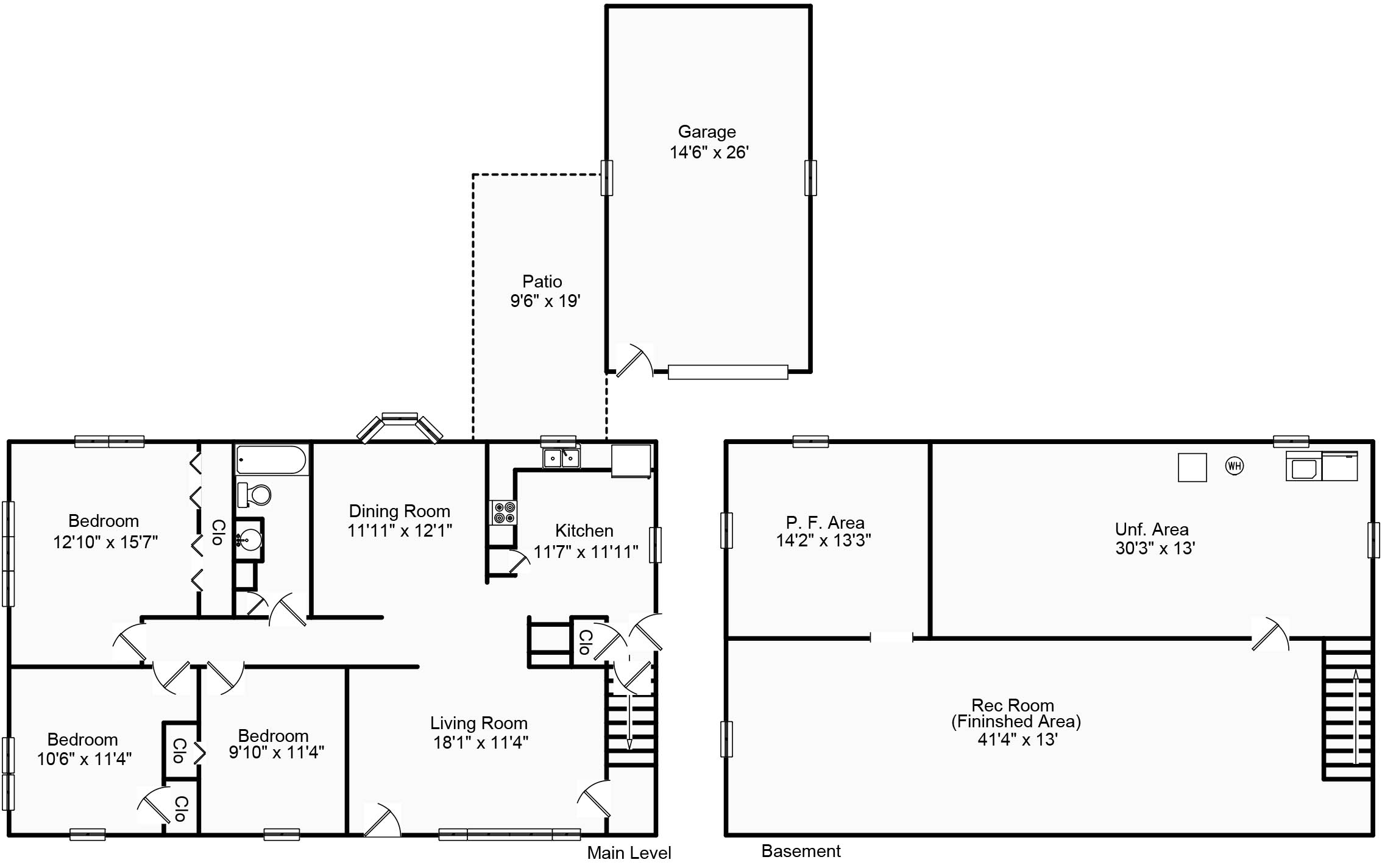
Loading floorplan...
117 S Sunnyside Drive, Blue Mound, IL Floorplan
  • 1024w

117 S Sunnyside Drive, Blue Mound, IL

$130,000

Active

3 Beds

1 Bath

1,932 SqFt

0.19 Acres

1 Car Garage

About 117 S Sunnyside Drive

Remodeled ranch in Meridian School District. This three bedroom boasts all new flooring, paint, windows and gutters. Basement could be finished out to buyers taste for additional living space. There is a two car detached garage. This beautiful home is move in ready! Seller prefers to sell as is since total remodel.

Facts & Features

MLS® # 6255510
Price $130,000
Cost Per Square Foot $67
Bedrooms 3
Bathrooms 1.00
Full Baths 1
Total Finished Square Feet 1,932
Total Finished Above Grade 1,288
Main 1,288
Basement Total 1,288
Basement Finished 644
Basement Unfinished 644
Acres 0.19
Year Built 1959
Type Single Family
Sub-Type Single Family Residence
Style Ranch
Status Active
Taxes $3,102
Tax Year 2024

Community Information

Address 117 S Sunnyside Drive
Subdivision Sunnyside Add
City Blue Mound
County Macon
State IL
Zip Code 62513

Amenities

Parking Detached, Garage
# of Garage Spaces 1
Is Waterfront No
Has Pool No

Interior

Appliances Dishwasher, Electric Water Heater
Heating Forced Air
Cooling Central Air
Has Basement Yes
Basement Full, Unfinished
Fireplace No
# of Stories 1
Stories One

Exterior

Roof Shingle
Construction Vinyl Siding
Foundation Basement

School Information

District Meridian Dist 15

Additional Information

Date Listed October 9th, 2025
Days on Market 7
Zoning RES

Listing Details

AgentJason White
OfficeBrinkoetter REALTORS®

Listing Map

Request a Showing

Provide a valid email address.
When would you like to view this property?