.jpg)
1263 E Dickinson Avenue, Decatur, IL
$65,000
Active
2 Beds
1 Bath
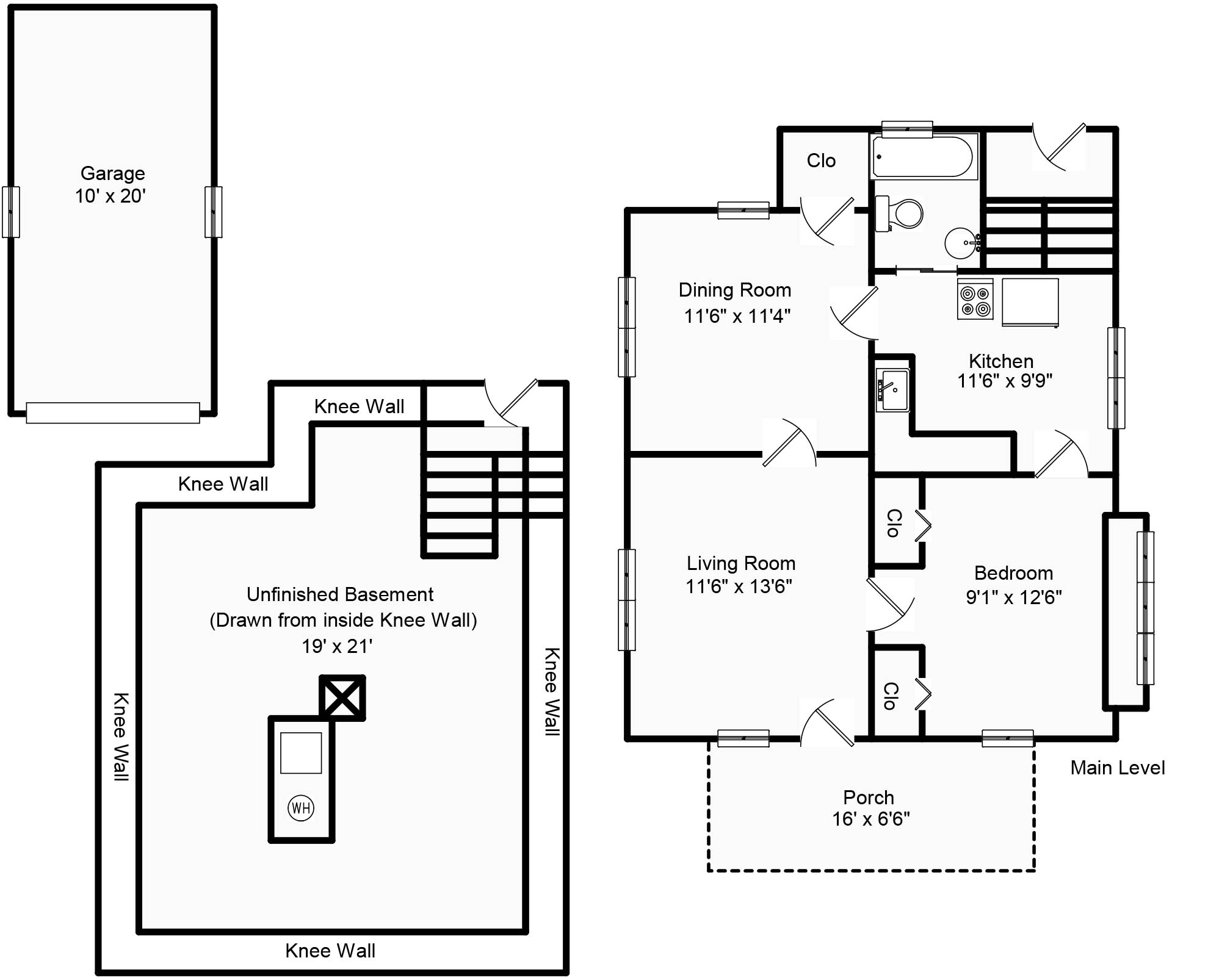
704 SqFt
1 Car Garage
About 1263 E Dickinson Avenue
PERFECT SMALL HOME! VERY CLEAN AND ORGANIZED! TWO BEDROOMS OR COULD BE ONE BEDROOM AND ANOTHER ROOM FOR AN OFFICE OR ANYTHING YOU WOULD LIKE! FRONT PORCH! STOVE AND REFRIGERATOR, CENTRAL AIR, FURNACE (BOUGHT IN JANUARY 2024 WITH 10 YEAR WARRANTY) AND 40 GAL HOT WATER HEATER BOUGHT IN 2023 ARE ALL STAYING WITH THE HOUSE! THIS HOME HAS A 1 CAR DRIVEWAY AND GARAGE! ROOF IN 2012! REMODELED BATH IN 2025! THIS HOME IS BEING SOLD IN AS IS CONDITION!
Facts & Features
MLS® # | 6252432 |
---|---|
Price | $65,000 |
Cost Per Square Foot | $92 |
Bedrooms | 2 |
Bathrooms | 1.00 |
Full Baths | 1 |
Total Finished Square Feet | 704 |
Total Finished Above Grade | 704 |
Main | 704 |
Basement Total | 704 |
Acres | 0.00 |
Year Built | 1921 |
Type | Single Family |
Sub-Type | Single Family Residence |
Style | Bungalow |
Status | Active |
Taxes | $614 |
Tax Year | 2024 |
Community Information
Address | 1263 E Dickinson Avenue |
---|---|
City | Decatur |
County | Macon |
State | IL |
Zip Code | 62521 |
Amenities
Parking | Detached, Garage |
---|---|
# of Garage Spaces | 1 |
Is Waterfront | No |
Has Pool | No |
Interior
Appliances | Range, Gas Water Heater, Refrigerator |
---|---|
Heating | Gas |
Cooling | Central Air |
Has Basement | Yes |
Basement | Finished, Full |
Fireplace | No |
# of Stories | 1 |
Stories | One |
Exterior
Roof | Shingle |
---|---|
Construction | Vinyl Siding |
Foundation | Basement |
School Information
District | Decatur Dist 61 |
---|---|
Elementary | Muffley |
Middle | Stephen Decatur |
High | Eisenhower |
Additional Information
Date Listed | June 14th, 2025 |
---|---|
Days on Market | 126 |
Zoning | RES |
Listing Details
Agent | Linda Neisslie Barding |
---|---|
Office | Brinkoetter REALTORS® |